Quadrilocale in vendita

Lecce, Via Casale Cerrate - San Pio Rudiae
€ 135.000
4 locali 4 locali
90 Mq 90 Mq
2 bagni 2 bagni

Quadrilocale in vendita

Lecce, Via Casale Cerrate - San Pio Rudiae

Descrizione annuncio

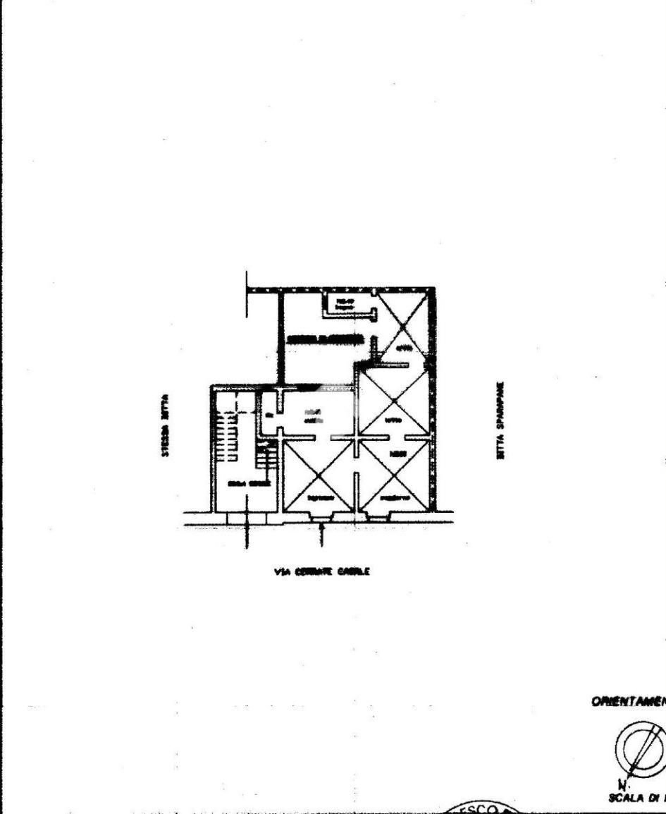
In zona Via Taranto, a Lecce, si propone in vendita un immobile di 90 mq, ideale per chi cerca un'abitazione spaziosa e funzionale. Situato al piano terra e dotato di ingressi indipendenti, l'appartamento si distingue per le caratteristiche volte a stella, che conferiscono un fascino unico e tradizionale agli ambienti. La proprietà offre tre camere da letto di cui due doppie e una singola, due bagni e un'ulteriore stanza, perfetta per essere adibita a studio, soggiorno o sala hobby. Uno dei punti di forza di questa soluzione è lo spazio esterno di pertinenza, al quale si accede dalla cucina abitabile, che garantisce momenti di relax e convivialità. La posizione strategica rende l'immobile un ottimo investimento, sia per uso personale che per locazione turistica oppure destinata a studenti. La combinazione di elementi storici e caratteristici, unita alla generosa metratura, offre un'opportunità imperdibile per chi desidera vivere in una zona tranquilla ma ben collegata o sfruttare la posizione centrale per un ottimo affare.

Mostra tutto

Nelle vicinanze

Trasporto pubblico Trasporto pubblico
stazione di Lecce
stazione di Lecce
1,2 Km
Surbo
Surbo
2,8 Km
Via Taranto
Via Taranto
210 m
Viale dell'Università
Viale dell'Università
220 m
Ricariche auto elettriche Ricariche auto elettriche
Eneldrive Parcheggio Autobus
340 m
Eneldrive S. Oronzo
740 m
Eneldrive Castello Carlo V
970 m
Eneldrive Stazione di Lecce
1,2 Km
Hilton Garden Inn Lecce
1,6 Km
Scuole Scuole
I.C.Alighieri–Diaz
170 m
Università del Salento
230 m
Liceo Scientifico "Cosimo De Giorgi" Polo didattico distaccato
300 m
Liceo Classico Statale Giuseppe Palmieri
310 m
Scuole
350 m
Farmacia Farmacia
Farmacia dell'Obelisco
170 m
Farmacia del Duomo
570 m
Farmacia De Pascalis
590 m
Farmacia Ferocino
860 m
Farmacia Giordano
880 m
Supermercati Supermercati
Eurospin
300 m
Lidl
710 m
Di Meglio
860 m
Despar
990 m
Crai Supermercato De Leo
1,1 Km
Negozi Negozi
Duomo Market
460 m
Gluten Free & Bio
550 m
Blanc Du Nil
600 m
Degas
610 m
Golosità del Salento - Valentina
650 m
Bar Bar
South
590 m
Mastro
590 m
Syrbar
620 m
Messapia Wine Bar
700 m
Viveur
710 m
Ristoranti Ristoranti
Barbecue
130 m
Ramses II
160 m
La Succursale Barrueco
190 m
Shangai
200 m
La Pagghiara
290 m
Mostra tutto

Caratteristiche

Rif.:
61145729
Piano:
Terra con giardino di 2
Totale piani:
2
Camere da letto:
3
Arredamento:
Assente
Condizionamento:
Predisposizione impianto
Mostra tutto
Prezzo Prezzo
€ 135.000
Rata mutuo Rata mutuo
€ 629 / mese
Spese annue Spese annue
€ 0
Proponi il tuo prezzoProponi il tuo prezzo

Classe Energetica

G
G
G
G
G
G
G
G
G
EP invernale del fabbricato:
EP estiva del fabbricato:
Anno di costruzione:
1940
Riscaldamento:
Autonomo
Tipo impianto:
A radiatori
Tipo alimentazione:
Metano

Ti interessa visionare l'immobile?

Fissa un appuntamento  Fissa un appuntamento

Richiedi informazioni

Clicca su Leggi per aprire l'informativa
* Questi campi sono obbligatori

Calcola il tuo mutuo

Semplice e senza impegno
Anticipo

( % )
Mutuo

( % )

pochi semplici passi

inserisci i tuoi dati
Questionario completato
Grazie per aver richiesto un appuntamento senza impegno con un nostro Consulente del Credito e Assicurativo.

Hai inserito correttamente tutti i dati necessari e a breve riceverai una e-mail con un link da convalidare per inviare i tuoi dati.
Affiliato
Immobiliare Obelisco Srl
Via Taranto, 40/C 73100 Lecce (LE)

Il nostro staff


  • Alessandro Ianne
    Affiliato

  • Matteo Imperato
    Responsabile
Via Taranto, 40/C 73100 Lecce (LE)
Zona: Lecce-Via Taranto-Santa Rosa-Borgo Pace-Via Adriatica-Borgo S.Nicola
Mostra su mappa
Orari: lunedì - venerdì: 8.30-13.00 / 16.00-20.30sabato: 9.00-13.00 / 15.00-17.00
Affiliato
Immobiliare Obelisco Srl
Via Taranto, 40/C 73100 Lecce (LE)

2025 Tecnocasa Franchising S.p.A. - P. IVA 08365160152 - Via Monte Bianco 60/A 20089 Rozzano (MI). Ogni agenzia ha un proprio titolare ed è autonoma. Privacy policy | Policy utilizzo | Cookie policy