Quadrilocale in vendita

Lecce, Via Cerrate Casale - San Pio Rudiae
€ 105.000
4 locali 4 locali
132 Mq 132 Mq
2 bagni 2 bagni

Quadrilocale in vendita

Lecce, Via Cerrate Casale - San Pio Rudiae

Descrizione annuncio

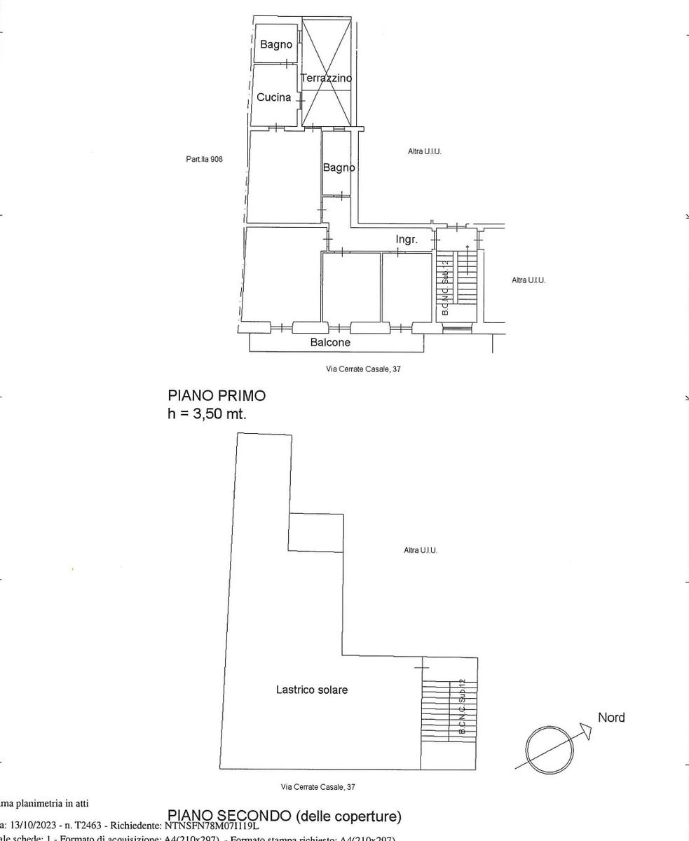
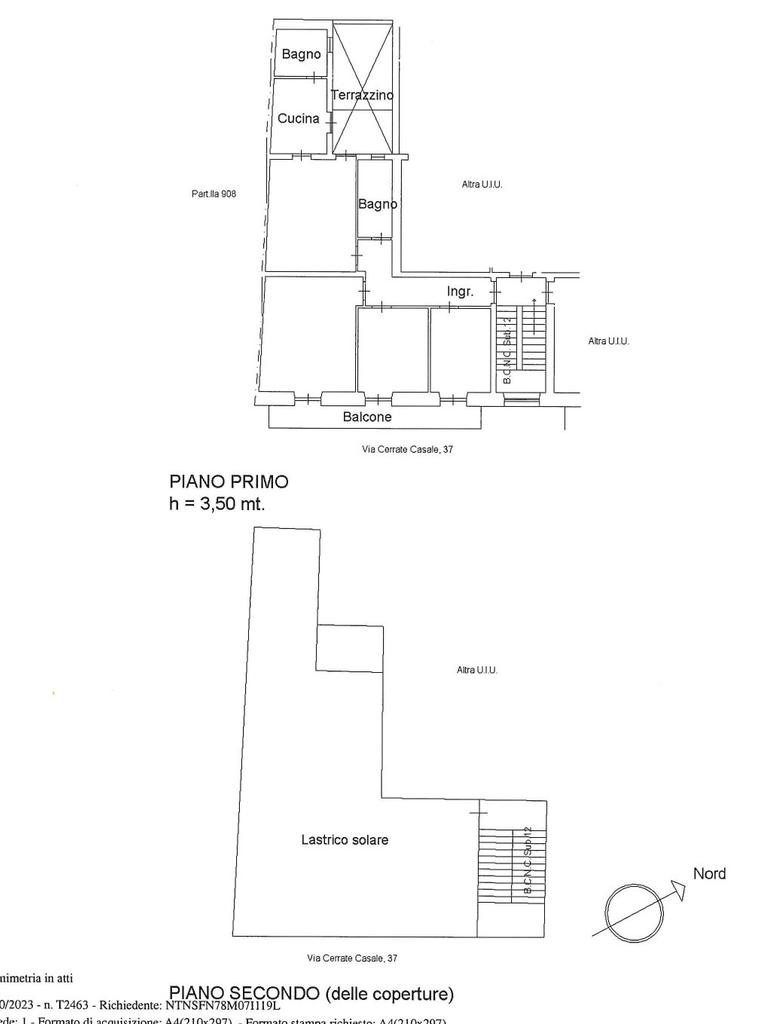
Nel cuore della zona di Via Taranto, a Lecce, si propone in vendita un ampio appartamento di 132 mq, situato al primo ed ultimo piano di una piccola palazzina senza condominio. La proprietà si compone da un ampio salone con accesso ad un terrazzino a livello ideale per passare per momenti di relax, una spaziosa cucina che può ospitare fino a 6 persone, 3 comode camere da letto e due bagni finestrati. Completa l'immobile l'area solare di esclusiva proprietà.

La posizione dell'abitazione è un punto strategico, con facile accesso ai principali servizi e alle principali sedi universitarie della città, nonchè il centro storico della città barocca, rendendola una scelta ideale sia per le famiglie ma anche per chi vuole investire nell'ambito universitario e/o turistico.

L'immobile si presenta DA RISTRUTTURARE, offrendo l'opportunità di personalizzare gli spazi secondo le proprie esigenze e gusti. Questa soluzione abitativa si presta a diventare un ambiente accogliente e funzionale, perfetto per chi desidera vivere in una zona ben collegata e ricca di comodità.

Mostra tutto

Nelle vicinanze

Trasporto pubblico Trasporto pubblico
stazione di Lecce
stazione di Lecce
1,1 Km
Surbo
Surbo
2,8 Km
Via Sozy Carafa
Via Sozy Carafa
190 m
Viale dell'Università
Viale dell'Università
230 m
Ricariche auto elettriche Ricariche auto elettriche
Eneldrive Parcheggio Autobus
470 m
Eneldrive S. Oronzo
760 m
Eneldrive Castello Carlo V
1,0 Km
Eneldrive Stazione di Lecce
1,1 Km
Hilton Garden Inn Lecce
1,7 Km
Scuole Scuole
I.C.Alighieri–Diaz
190 m
Liceo Scientifico "Cosimo De Giorgi" Polo didattico distaccato
270 m
Liceo Classico Statale Giuseppe Palmieri
290 m
Scuole
310 m
Università del Salento
350 m
Farmacia Farmacia
Farmacia dell'Obelisco
280 m
Farmacia De Pascalis
470 m
Farmacia del Duomo
550 m
Farmacia Lolli
830 m
Farmacia Ferocino
880 m
Ospedali Ospedali
Vito Fazzi
3,0 Km
Supermercati Supermercati
Eurospin
250 m
Lidl
710 m
Di Meglio
970 m
Supermercato
1,1 Km
Despar
1,1 Km
Negozi Negozi
Duomo Market
420 m
Gluten Free & Bio
430 m
Blanc Du Nil
580 m
Golosità del Salento - Valentina
640 m
Degas
660 m
Bar Bar
South
520 m
Mastro
550 m
Syrbar
590 m
Bar Rosso & Nero
610 m
Bar Moro
710 m
Ristoranti Ristoranti
Ramses II
120 m
Barbecue
250 m
Elleniko
270 m
La Succursale Barrueco
280 m
Shangai
290 m
Mostra tutto

Caratteristiche

Rif.:
61129997
Piano:
1 di 1 (ultimo Piano)
Balconi:
1
Terrazzi:
1
Camere da letto:
3
Arredamento:
Assente
Mostra tutto
Prezzo Prezzo
€ 105.000
Rata mutuo Rata mutuo
€ 495 / mese
Spese annue Spese annue
€ 0
Proponi il tuo prezzoProponi il tuo prezzo

Classe Energetica

G
G
G
G
G
G
G
G
G
EP globale non rinnovabile:
160.00 kW h/m² anno
EP globale rinnovabile:
52.75 kW h/m² anno
EP invernale del fabbricato:
EP estiva del fabbricato:
Anno di costruzione:
1970
Riscaldamento:
Autonomo
Tipo impianto:
A radiatori
Tipo alimentazione:
Metano

Ti interessa visionare l'immobile?

Fissa un appuntamento  Fissa un appuntamento

Richiedi informazioni

Clicca su Leggi per aprire l'informativa
* Questi campi sono obbligatori

Calcola il tuo mutuo

Semplice e senza impegno
Anticipo

( % )
Mutuo

( % )

pochi semplici passi

inserisci i tuoi dati
Questionario completato
Grazie per aver richiesto un appuntamento senza impegno con un nostro Consulente del Credito e Assicurativo.

Hai inserito correttamente tutti i dati necessari e a breve riceverai una e-mail con un link da convalidare per inviare i tuoi dati.
Affiliato
Immobiliare Obelisco Srl
Via Taranto, 40/C 73100 Lecce (LE)

Il nostro staff


  • Alessandro Ianne
    Affiliato

  • Matteo Imperato
    Responsabile

  • Alessia Piccioli
    Collaboratrice

  • Francesca Perrone
    Coordinatrice

  • Silvio Protopapa
    Collaboratore
Via Taranto, 40/C 73100 Lecce (LE)
Zona: Lecce-Via Taranto-Santa Rosa-Borgo Pace-Via Adriatica-Borgo S.Nicola
Mostra su mappa
Orari: lunedì - venerdì: 8.30-13.00 / 16.00-20.30sabato: 9.00-13.00 / 15.00-17.00
Affiliato
Immobiliare Obelisco Srl
Via Taranto, 40/C 73100 Lecce (LE)

2026 Tecnocasa Franchising S.p.A. - P. IVA 08365160152 - Via Monte Bianco 60/A 20089 Rozzano (MI). Ogni agenzia ha un proprio titolare ed è autonoma. Privacy policy | Policy utilizzo | Cookie policy